Plantas de Casas Modernas Grátis 2013 e 2014
Se você está pensando em construir a sua casa em 2013 ou no ano que vem, então vai precisar de uma planta de casa moderna para dar início a base da sua construção. Hoje em dia o construir uma casa requer uma planta moderna e profissional, porém fazer uma planta não é coisa para pessoas despreparadas e sem noção de engenharia é necessário contratar um profissional qualificado que vai avaliar o seu terreno e fazer uma planta de acordo com suas necessidades.
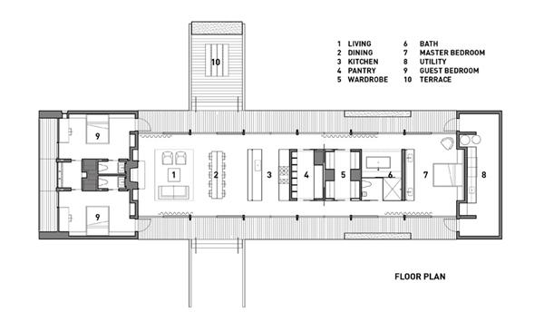
Aqui você encontrar modelos para se inspirar e ter uma noção básica de sua casa, plantas de casas pequenas, casas grandes, com 1, 2, 3 e até 4 quartos, plantas com jardins, garagens e muito mais!
Na galeria de plantas baixa você pode conferir todos os modelos, e caso queira, pode salvar em seu computador e levar para um arquiteto fazer as devidas alterações ou trabalhar encima do modelo para o seu projeto! E aguarde em breve iremos disponibilizar modelos de plantas baixa em DWG Autocad para você mesmo editar e fazer o projeto da construção de sua casa.
Se você gostou do nosso artigo por favor compartilhe esta postagem no seu Facebook e indique aos amigos…o BRDicas agradece.
Termos:
- Plantas modernas de casas grátis
- Modelos de Planta baixa moderno
- Plantas de casas modernas
- Plantas baixas de casa para construir
- Plantas de casas modernas 2013
- Plantas de casas modernas 2014
- Projetos de casas modernas gratuito
- baixar planta baixa de casa grátis






























